ÜRÜNLER
ÜRÜNLER
Akustik Trapez
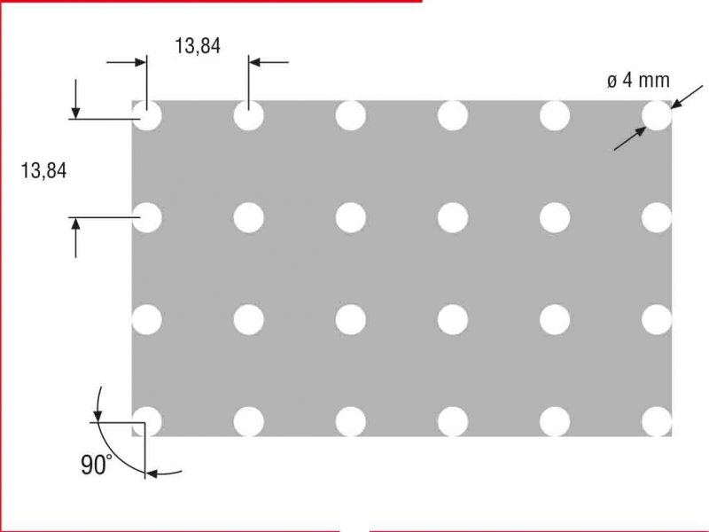
Metal levhalara perfore işlemi yapılması , malzemelere akustik performans kazandırarak gürültünün soğurulmasına olanak sağlar.
Özellikle Cephe Kaset Sistem ve Yüksek Hadve Trapezlerin uygulandığı sistemlerde akustik performasın yanısıra görsel olarak da avantaj sağlamaktadır.
0,30 mm 'den 1,50 mm'ye kadar istenilen ebatlarda, istenilen yoğunlukta delik işlemi yapılabilmektedir.
| R 1000 | R 1001 | R 1002 | R 1003 | R 1004 | R 1005 |
| R 1006 | R 1007 | R 1011 | R 1012 | R 1013 | R 1014 |
| R 1015 | R 1016 | R 1017 | R 1018 | R 1019 | R 1020 |
| R 1021 | R 1023 | R 1024 | R 1027 | R 1028 | R 1032 |
| R 1033 | R 1034 | R 1037 | R 2000 | R 2001 | R 2002 |
| R 2003 | R 2004 | R 2008 | R 2009 | R 2010 | R 2011 |
| R 2012 | R 3000 | R 3001 | R 3002 | R 3003 | R 3004 |
| R 3005 | R 3007 | R 3009 | R 3011 | R 3012 | R 3013 |
| R 3014 | R 3015 | R 3016 | R 3017 | R 3018 | R 3020 |
| R 3022 | R 3027 | R 3031 | R 4001 | R 4002 | R 4003 |
| R 4004 | R 4005 | R 4006 | R 4007 | R 4008 | R 4009 |
| R 4010 | R 5000 | R 5001 | R 5002 | R 5003 | R 5004 |
| R 5005 | R 5007 | R 5008 | R 5009 | R 5010 | R 5011 |
| R 5012 | R 5013 | R 5014 | R 5015 | R 5017 | R 5018 |
| R 5019 | R 5020 | R 5021 | R 5022 | R 5023 | R 5024 |
| R 6000 | R 6001 | R 6002 | R 6003 | R 6004 | R 6005 |
| R 6006 | R 6007 | R 6008 | R 6009 | R 6010 | R 6011 |
| R 6012 | R 6013 | R 6014 | R 6015 | R 6016 | R 6017 |
| R 6018 | R 6019 | R 6020 | R 6021 | R 6022 | R 6024 |
| R 6025 | R 6026 | R 6027 | R 6028 | R 6029 | R 6032 |
| R 6033 | R 6034 | R 7000 | R 7001 | R 7002 | R 7003 |
| R 7004 | R 7005 | R 7006 | R 7008 | R 7009 | R 7010 |
| R 7011 | R 7012 | R 7013 | R 7015 | R 7016 | R 7021 |
| R 7022 | R 7023 | R 7024 | R 7026 | R 7030 | R 7031 |
| R 7032 | R 7033 | R 7034 | R 7035 | R 7036 | R 7037 |
| R 7038 | R 7039 | R 7040 | R 7042 | R 7043 | R 7044 |
| R 7045 | R 7046 | R 7047 | R 8000 | R 8001 | R 8002 |
| R 8003 | R 8004 | R 8007 | R 8008 | R 8011 | R 8012 |
| R 8014 | R 8015 | R 8016 | R 8017 | R 8019 | R 8022 |
| R 8023 | R 8024 | R 8025 | R 8028 | R 9001 | R 9002 |
| R 9004 | R 9005 | R 9006 | R 9007 | R 9010 | R 9011 |
| R 9016 | R 9017 | R 9018 |


